|
|
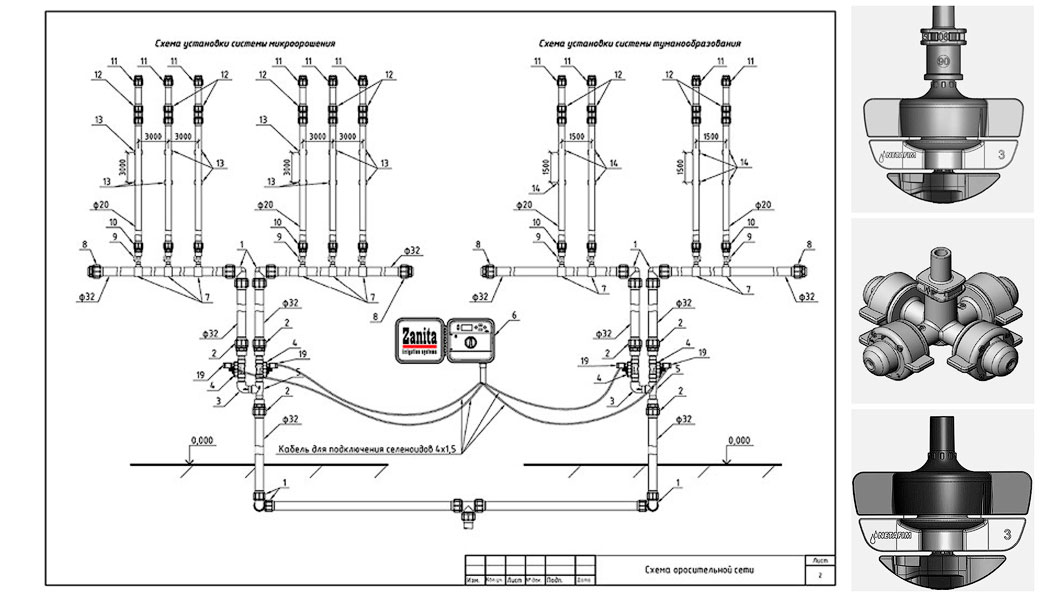
Спринклеры для туманообразования и микрополива |
|
|
|
|
18.02.2019
Современные теплицы не могут обойтись без туманообразования, необходимого для лучшего укоренения растений, охлаждения и увлажнения микро климата теплицы. Маркетинг определил, какие компоненты туманообразования соответствуют требованиям современного развития ирригационной индустрии. Необходимое оборудование для систем туманообразования низкого давления, проект, монтажные схемы, консультации и доставка товара - это не полный перечень услуг, который предлагает ООО "Занита". Февраль - время скидок в интернет-магазине www.irrigation.by. Цены по запросу - тел. 8029 613 38 65.

|
|
|
|
|
|